de la Bassecour Caanstraat 107

2201 MV Noordwijk

€ 375.000 k.k.

74 m² woonoppervlakte
0 m² perceel
3 kamers

Omschrijving

Ben je op zoek naar een instapklare maisonnette met veel licht, een zonnig balkon en een centrale ligging in Noordwijk-Binnen? Dan is deze verzorgde 3-kamer maisonnette precies wat je zoekt. De woning is keurig afgewerkt, goed onderhouden en direct te betrekken.

– Woonoppervlakte ca. 74 m²
– 2 slaapkamers)
– Energielabel B
– Zonnig balkon op het zuidwesten
– Privé berging
– Gelegen in Noordwijk-Binnen

Begane grond:
Eigen entree met meterkast en trapopgang naar de eerste verdieping.

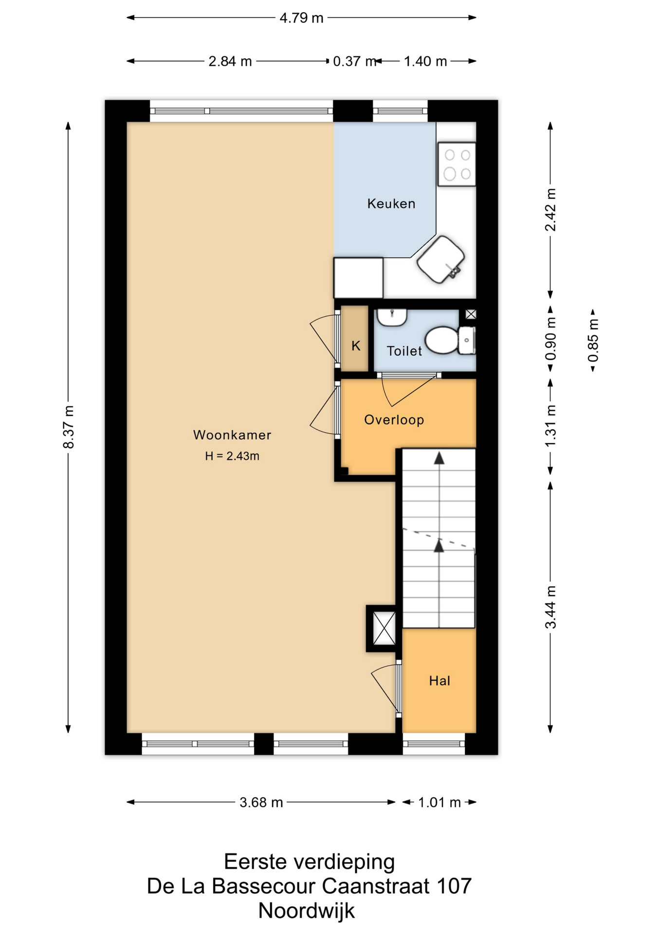
1e verdieping:
Hal met toegang tot het toilet, voorzien van fonteintje. De lichte doorzonwoonkamer beschikt over grote raampartijen en een fraaie eikenhouten vloer. De wanden zijn keurig afgewerkt. Aan de achterzijde bevindt zich de open keuken, uitgerust met diverse inbouwapparatuur zoals een combi-magnetron, koel-/vriescombinatie, kookplaat en afzuigkap.

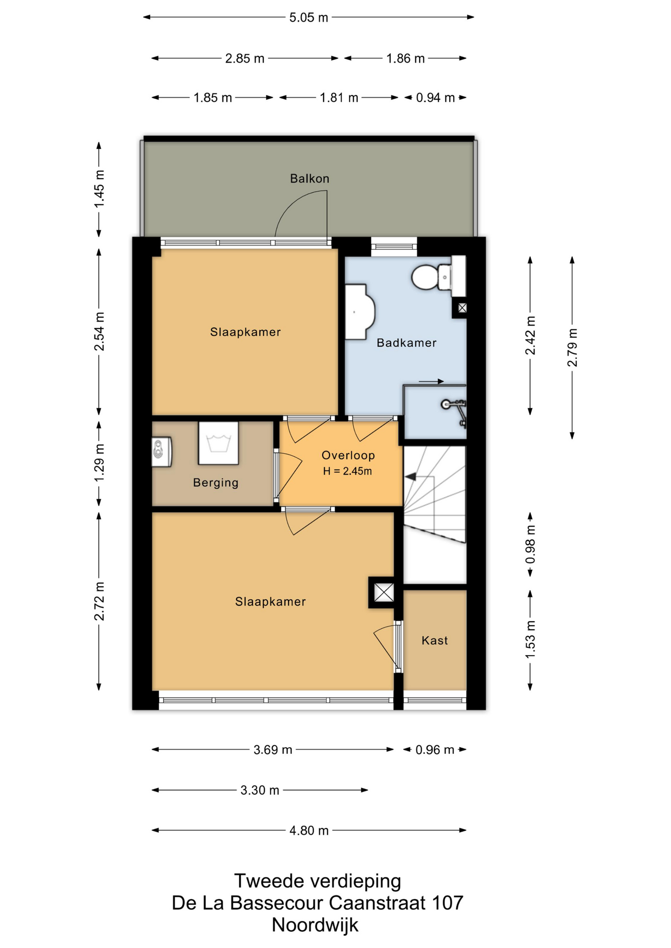
2e verdieping:
Overloop met toegang tot twee slaapkamers. De hoofdslaapkamer is gelegen aan de voorzijde en beschikt over een extra opbergkast. Tussen de slaapkamers bevindt zich een praktische inpandige berging met de opstelling van de wasapparatuur en de Cv-ketel. De volledig betegelde badkamer is voorzien van een wastafelmeubel, toilet en douche.

Buitenruimte:
Het balkon heeft een gunstige ligging op het zuidwesten, waardoor je hier heerlijk van de middag- en avondzon kunt genieten.

Ligging:
De woning is gelegen in het geliefde Noordwijk-Binnen, met winkels, scholen en sportvoorzieningen op korte afstand. Ook het strand, de duinen en uitvalswegen richting de Randstad zijn snel bereikbaar. Een ideale combinatie van rustig wonen met alle voorzieningen binnen handbereik.

– Goed onderhouden woning
– Servicekosten € 85,00 p/m

Kenmerken

Overdracht

Vraagprijs € 375.000 k.k.
Vraagprijs per m² € 5.068
Status Verkocht onder voorbehoud
Aanvaarding In overleg

Bouw

Soort object Appartement
Subtype woning Maisonnette
Bouwjaar 1997
Bouwvorm Bestaande bouw
Ligging In woonwijk

Oppervlakte en inhoud

Woonoppervlakte 74 m²
Woonkameroppervlakte 24 m²
Perceeloppervlakte 0 m²
Externe bergruimte 5 m²
Inhoud 240 m³

Indeling

Aantal kamers 3
Aantal slaapkamers 2
Aantal badkamers 1
Badkamer voorzieningen Toilet, Douche, Wastafelmeubel
Voorzieningen Mechanische ventilatie

Energie

Energieklasse B
Warmwater Cv ketel en Elektrische boiler eigendom
C.V.-Ketel Ferroli, Bouwjaar: 2017, Brandstof: GAS
Verwarming Cv ketel

Buitenruimte

Achterom Nee

Schuur / Berging en parkeren

Schuur / Berging Vrijstaand steen
Voorzieningen Voorzien van elektra
Parkeerfaciliteiten Openbaar parkeren

Overig

Permanente bewoning Ja
Onderhoud binnen Goed
Onderhoud buiten Goed
Huidig gebruik Woonruimte
Huidige bestemming Woonruimte

Op de kaart

Download de brochure
van de la Bassecour Caanstraat 107

Download de brochure met alle informatie over dit object.